
Classement de la section:
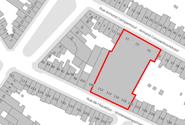
Les communes > Ixelles > Rue de l'Aqueduc > Rue de l'Aqueduc n°112-118Les corps de métiers > Les architectes > Architecte Jacques Wybauw > Rue de l'Aqueduc n°112-118
Description (historique/actualité/....)
:
Contenu incomplet
Nous recherchons toute information qui nous permettrait de le compléter. Merci pour votre aide.
Recherches élémentaires sur l'ancienne occupation de ces parcelles :
- 1888-1902: urbanisation du quartier. Les photos aériennes montrent des maisons individuelles
- vers 1910 premières activités industrielles (établissements Franeau )
- 1920-1939: Etablissements généraux de carroserie et automobiles
- 1946-1993: garage Renault. Durant une période (à préciser ?) ce fut même le siège social de Renault Belgique. Architecte: Jacques Wybauw, 1973.
- 1992: Renault quitte le bâtiment pour s'installer boulevard de la Plaine
- 1993: Projet de rénovation des façades et des bureaux de l'immeuble rue de l'Aqueduc suivi de la démolition des immeubles dans le centre de l'îlot pour y installer un centre de congrès (source IEB.be).
- une école de management MCE y fut présente ensuite
- 2024-2026: travaux pour nouveau projet de logements






